Ongoing Project
Senthil SI Police - Ammapet (Salem)

Overview

Location  |  Ammapet (Salem)

Site Name  |  SMB - Senthil SI Police

Status  |  Ongoing Project

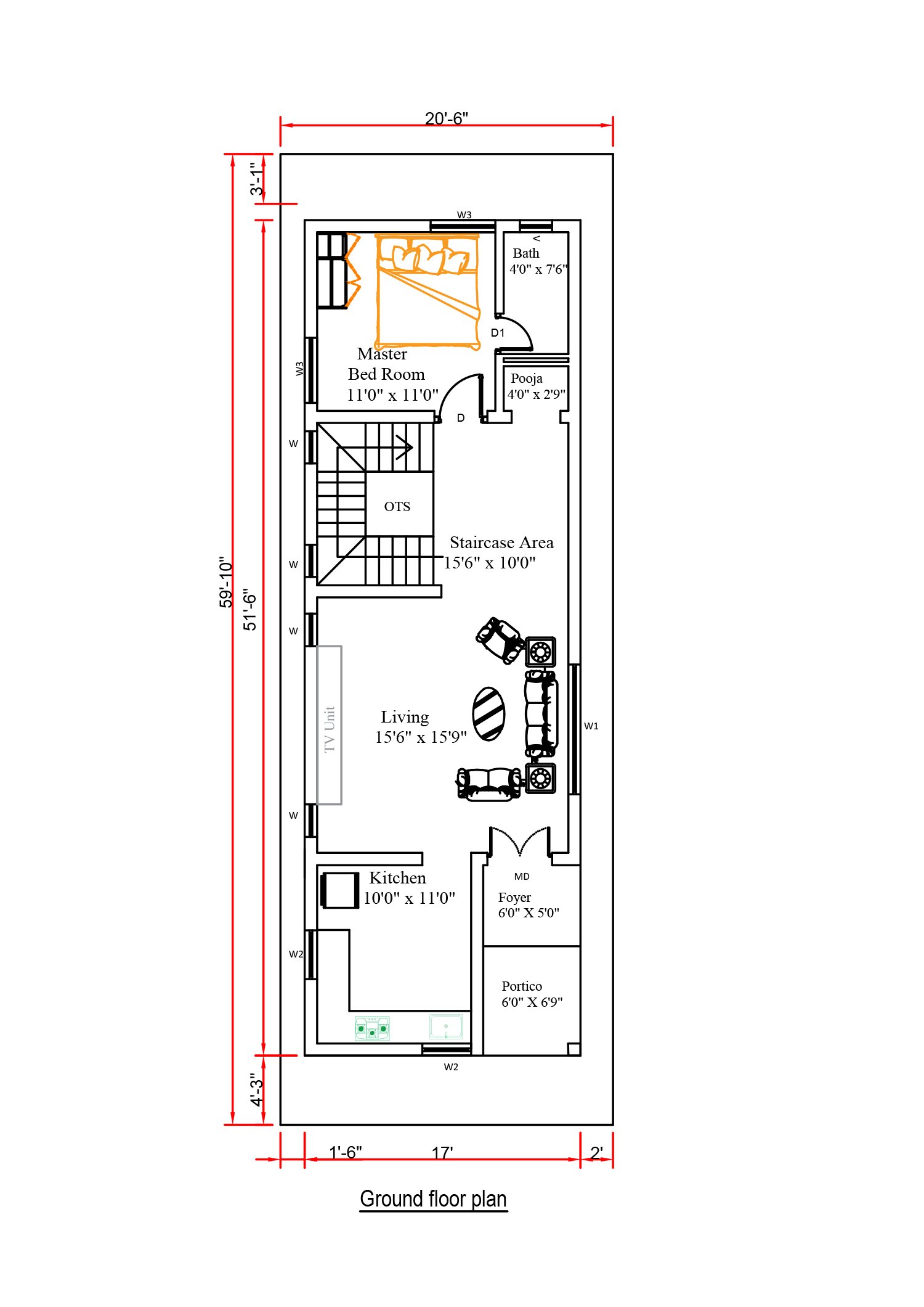
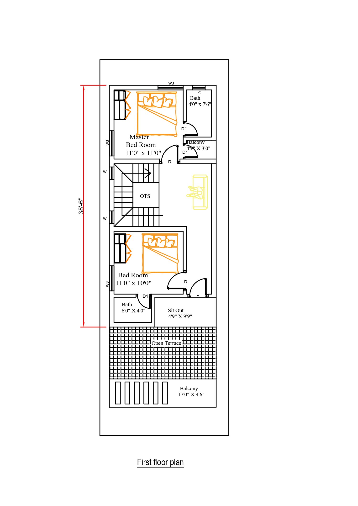
Project  |  3 BHK

Land Area  |  1,607 Sq.ft

Buitup Area  |  875 Sq.ft

Handing Over  |  January 2023

-->

specifications

Foundation
  • RCC Framed Structure
Walls
  • Brick masonry 9 inches thickness.
  • Inside partition 4½ inches thickness.
Roof
  • RCC Roof slab 1:2:4 Mix – 5 inches Thick
Common
  • common toilet in car parking area,
  • Security Room, open terrace,
  • Lift,
  • Stair Case, Sump for drinking water,
  • Over Head Water tank,
  • Septic Tank, is Common for All.
Door & Windows
  • Teak wood for Main entrance door with Safety grill, balconies with safety grill and French windows, Country wood Frame with Flush door for Bed Room, UPVC Window with grill and PVC Door for Bathroom.
Electrical Wiring
  • Concealed wiring with essential number points.
  • Each Flat will have a Three Phase power supply with separate meter.
Sanitary & Water Supply
  • I.W.C. / E.W.C.( parry ware White color) in toilets and one shower connection and one tap Connection for bath rooms (Metro).Provision will be given for one Geycer point and one White wash basin ( parry ware) will be provided in each bathroom.
Flooring
  • Vitrified Tiles (at the cost of Rs. 50/Sft) for flooring & Tiles for bath rooms up to 7 feet height (at the cost of Rs. 40/Sft)
Kitchen
  • Granite Platform & Stainless Steel sink, glazed Tiles on cooking side wall up to 4 feet height.
Loft & Cupboard
  • 2 Feet wide loft in Bed Room and Kitchen Cupboard will be provided without frames/shutters.
Bore well
  • 6” borewell with 300 feet depth – 1 No.s
Water tank
  • Overhead tank with cover for domestic water consumption and drinking water (Note:Drinking water pipe line will be provided with Water meter)
Water sump
  • Drinking water sump will be provided in car parking area with a maximum Sump capacity of : ± 15,000/- litres
Painting
  • Putty with one coat premium emulsion and two coats of Asian paints Tractor Emulsion for inside Wall and Asian paints Ace for outer walls, Enamel paint for wooden works and Iron works.